THE EAGLE

2018

Nestled at the edge of the scenic Leipziger Lakeland, this timber-framed museum pavilion merges nature, architecture, and wildlife into a harmonious experience. A cozy café and a viewing platform extending over the water invite visitors to slow down and reconnect with the natural world.

Inspired by the silhouette of a sea eagle in flight, the pavilion’s dynamic, wing-like rooflines provide sheltered bike parking. With its bold yet graceful design, the pavilion becomes both a tribute to the region’s landscape and a perfect viewpoint for observing the majestic sea eagles in their natural habitat.

1
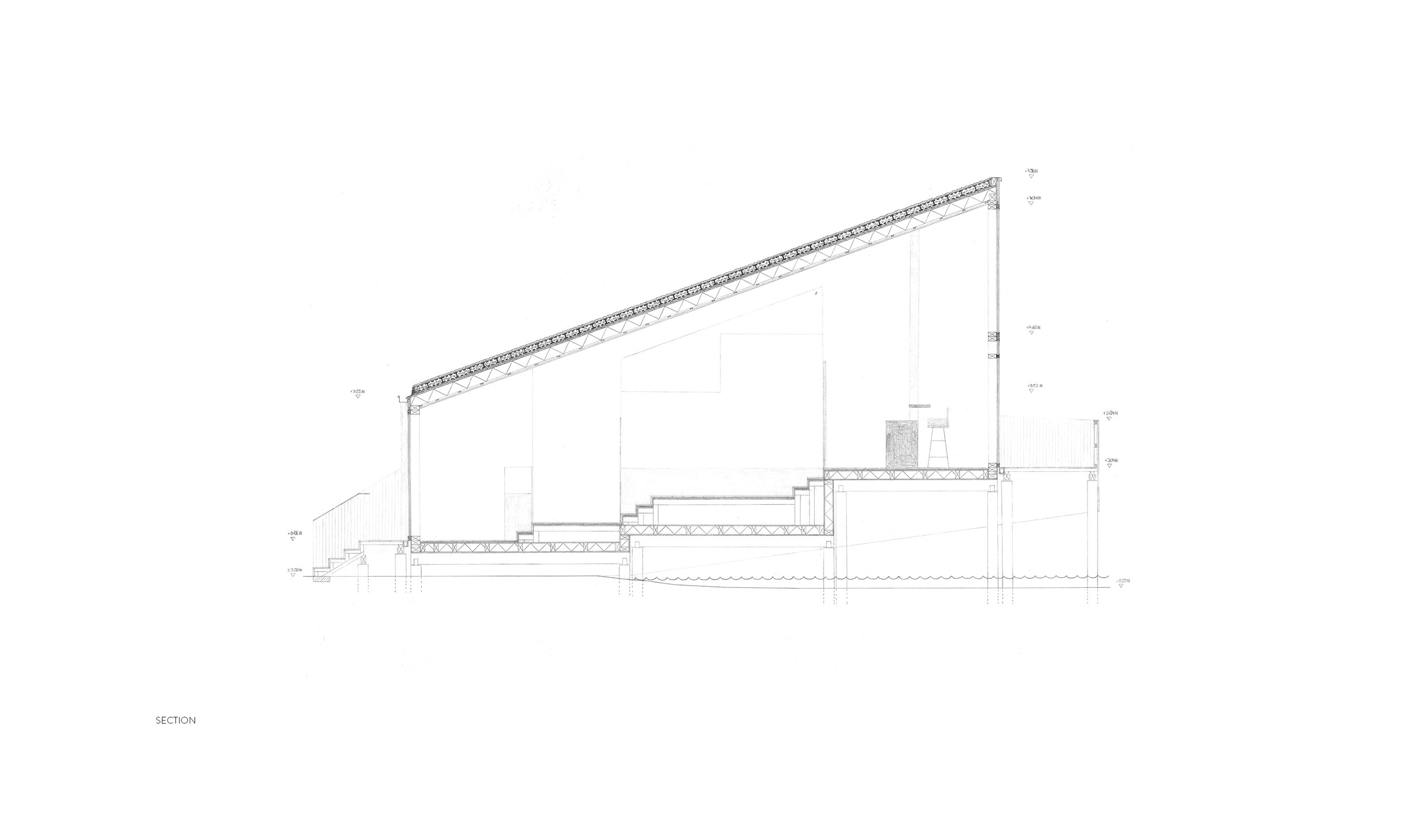
The form unfolds toward the lake, drawing the eye and the visitor outward. Fully glazed short facades open to the landscape, while the closed long sides subtly guide the visitor’s view.

2
Flowing with the landscape, the structure leads up a series of steps to a scenic viewing platform above the lake.

3
A bird-inspired form: dynamic architecture with wing-like roofs that shelter bicycles.